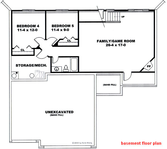
1,263 sq. ft. (House Plan #051263)
Vaulted ceilings abound in this plan with the Kitchen, Dining Room, Living Room, Mater Bedroom and Mater Bath included. The door at the midpoint of the stairs makes access from both the main floor and the lower level to the patio a breeze.
Other features include:
- 8’ & Vaulted ceilings
- Raised eating bar
- 3-Car Garage
- View-out basement
Details:
- 1263 Sq. Ft.
- 3-Bedrooms
- 2-Baths
- 51’ wide x 48’ deep
